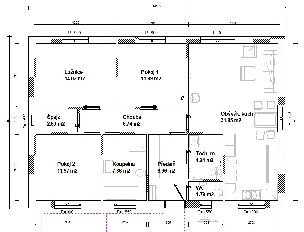
Bungalov 4kk 121,5 m²

Skvělý dům pro mladé profesionály, páry, či lidi, kterým děti již odrostly. Líbí se Vám tento dům? Neváhejte nás kontaktovat prostřednictvím kontaktního formuláře níže.
 

4 802 000 Kč vč. 12 % DPH
 

Dispozice4kk
Zastavěná plocha121,5 m²
Užitná plocha99,75 m²
TypBungalov
Rozměry domuDélka 13,5 m, šířka 9 m
StřechaValbová, sklon střechy 25°
Způsob vytápěníTepelné čerpadlo a podlahové vytápění (alternativa plynový kotel či kotel na tuhá paliva, nutno řešit hned zezačátku)